練馬4丁目中古戸建て

8,980万円(仲介)

NEW

(公簿)98.34㎡(約29.74坪)
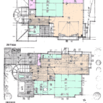
1階:48.03㎡ 2階:43.44㎡ 合計:91.47㎡
平成6年5月築

北西側約6.8m公道

大江戸線「豊島園」駅より徒歩3分!

前面道路 約6.8m公道

鉄骨造2階建て・外壁ALCボード

2階にもトイレ・洗面・シャワールーム設置

広々とした洋室約10畳

間取り

3LDK

階数

2階建て

土地面積

(公簿)98.34㎡(約29.74坪)

建物面積

1階:48.03㎡ 2階:43.44㎡ 合計:91.47㎡

所在地

東京都練馬区練馬4丁目

交通

都営大江戸線「豊島園」駅徒歩3分
西武池袋・豊島園線「豊島園」駅徒歩4分
西武池袋・豊島園線「練馬」駅徒歩13分

構造

鉄骨造2階建

築年数

平成6年5月築

土地権利

所有権

都市計画

市街化区域

用途地域

近隣商業地域・第一種低層住居専用地域

接道

北西側約6.8m公道

建ぺい率

80%、50%

容積率

300%、100%

設備

ガス:都市ガス、飲用水:公営水道、 汚水・雑排水:公共下水、駐車場:無し

取引形態

仲介

引渡

相談

備考

敷地面積は公簿面積と実測面積に差異が生じております。
有効宅地面積は91.98㎡。

お電話でのお問合せはこちら

03-3825-6411

受付時間: 9:30〜18:00(定休日: 水曜日・木曜日)

Webでのお問合せ

ご来店を希望の方

PAGE TOP